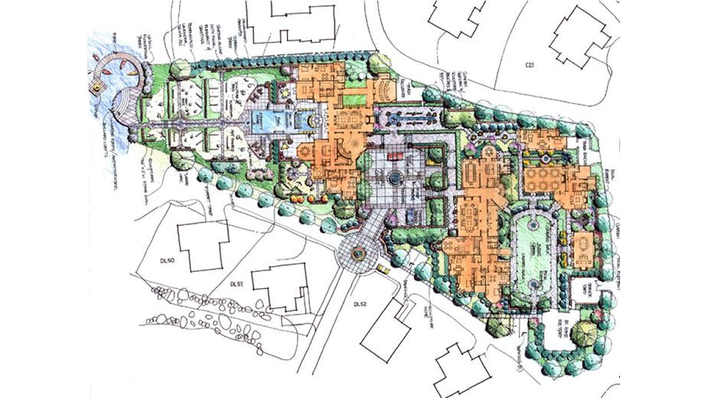
Jiang-su Conference Center
Nanjing is the capital of the Jiang-su Province on the south bank of the Yangzi River. The Gu residence is nestled in the hills, overlooking Lucky Lake and is part of a residential community protected by groves of mature pine trees and bamboo.
The Gu residence has large common spaces to accommodate extended family gatherings. Bay windows provide uninhibited views of the lake, mountains and recreational park.
Location: Nanjing, China
Client: The Gu Family
